Page top

Industrial Automation

Industrial Automation

Discontinued On Mar. 2017

E3G

Long-distance Photoelectric Sensor with Built-in Amplifier

E3G

Line of Long-distance Photoelectric Sensors for Large Workpieces Includes Retroreflective Models with Sensing Distance of 10 m and Distance Settings Up to 2 m.

* Information in this page is a reference that you created on the basis of information in the product catalog before the end of production, may be different from the current situation, such as goods for / supported standards options / price / features of the product. Before using, please check the compatibility and safety system.

(Unit: mm)

Tolerance class IT16 applies to dimensions in this datasheet unless otherwise specified.

Sensors

Retro-reflective Models

Pre-wired Model
E3G-R13

E3G Dimensions 4

Standard Connector Model
E3G-R17

E3G Dimensions 5

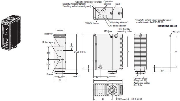
Terminal Block Models
E3G-MR19
E3G-MR19T

E3G Dimensions 6

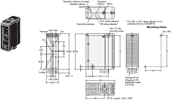
Distance-setting Models

Pre-wired Model
E3G-L73

E3G Dimensions 8

Standard Connector Model
E3G-L77

E3G Dimensions 9

Terminal Block Models
E3G-ML79
E3G-ML79T

E3G Dimensions 10

Accessories (Order Separately)

Terminal Protection Cover for Side-pullout Cable

E39-L129

E3G Dimensions 13

Note: 1. The cover is provided with a rubber bushing and cap to prevent the cable from being pulled out vertically.
           2. Refer to Data Sheet for the mounting method of the product.

Terminal Protection Cover for Side-pullout Cable
(Example: E3G-MR19)

E3G Dimensions 14